About the Designer
  • Work
  • Retail
  • Corporate
  • Education
  • Residential
Contact
Hannah Ka-Wai Ma
About the Designer
  • Work
  • Retail
  • Corporate
  • Education
  • Residential
Contact

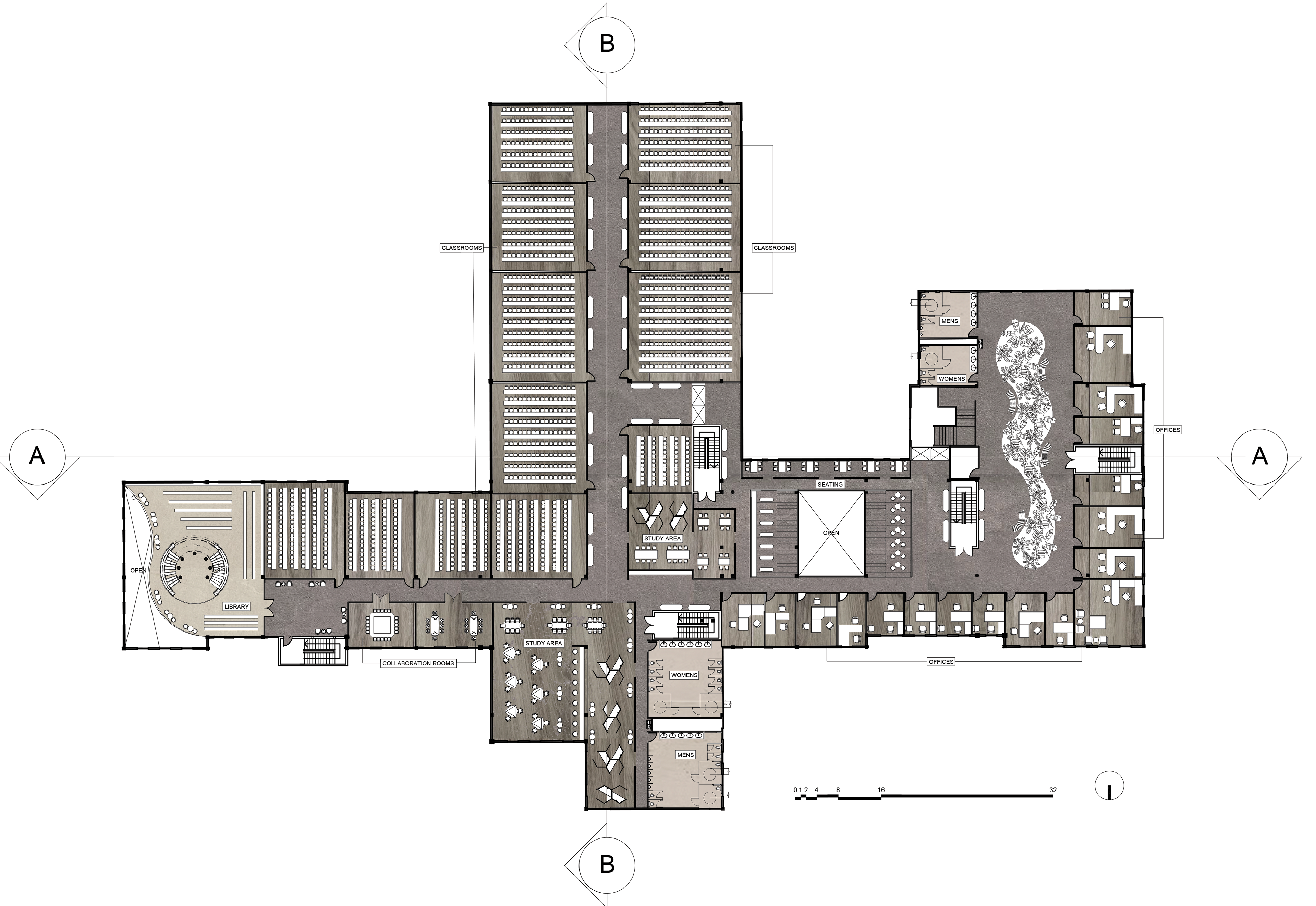
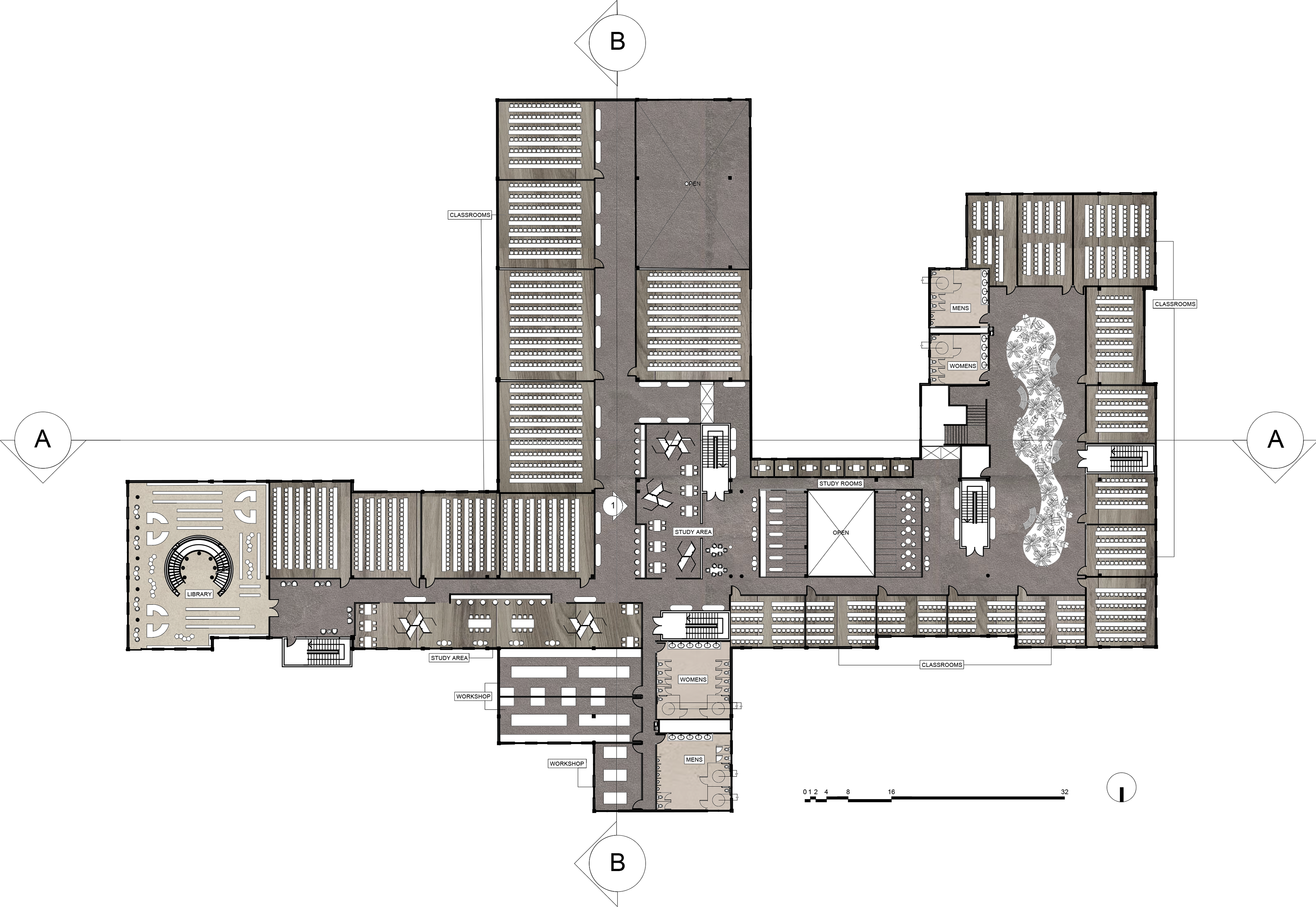
Education

Dartmouth's School of Engineering

You may also like

2025
Corporate
2023
Residential
2024
Retail
↑Back to Top
Powered by Adobe Portfolio